Plot 9

Dairy Mead Park, Newick Lane, Heathfield, TN21 8QY

01622 691911 or 01634 835900

[email protected]

Share with friends


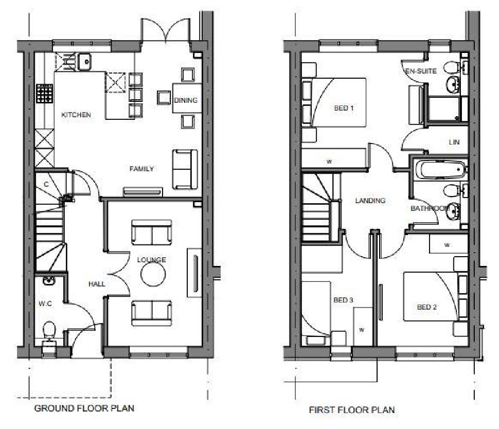
Floorplans

Plot 9.JPG


Plot 9 at Dairy Mead Park is a stunning 3 bedroom, 2 bathroom, home with stunning countryside views. AVAILABLE TO VIEW BY APPOINTMENT.


WELCOME TO Dairy Mead Park - An exclusive collection of just 10, three-bedroom beautiful new homes in the verdant county of East Sussex accessed via a private drive. Architecturally the properties draw inspiration from the traditional country cottage style, whilst simultaneously offering the efficiency and modernity of a brand-new home. At Dairy Mead Park residents benefit from the feel of rural living, along with the pre-requisite countryside views, whilst simultaneously being within walking distance to Heathfield Town.

Plot 9 at Dairy Mead Park is a beautiful 3-bedroom home with views of the surrounding countryside. The property boasts a separate living room and spacious kitchen/dinner with double doors leading to a patio and turfed rear garden. Upstairs, bedrooms 1 (which also has an en-suite) and 2 are double sized, while the third bedroom is a large single room.

Heathfield Town is a bustling market town, almost equidistant from Tunbridge Wells and Eastbourne. The town itself offers an assortment of local amenities, including four supermarkets and a wide array of cafés, retailers and restaurants. Slightly further afield is the historic village of Mayfield, which offers an exciting collection of independent shops and the well reputed Grade 1 listed Middle House Hotel and restaurant.

In the locality there are several primary schools and Heathfield Community College. Mayfield village also offers two further schools including Mayfield School for Girls.

For those commuting, the mainline stations of Buxted and Stonegate, around 15 to 20 minutes away, offer a well-established service to London. Whilst from Heathfield, there is also a regular bus service to Eastbourne, Tunbridge Wells and Uckfield.

Well-proportioned entrance hall leading to kitchen/diner/family room, living room and downstairs w/c. LVT flooring included throughout. Gas central heating via radiators.

Spacious room with front aspect window and TV point.

Bespoke shaker style light kitchens with stone worktops. Appliances included fridge/freezer, dishwasher, washing machine, oven & combination oven, 5 ring gas hob and extractor hood. TV point. Mains powered battery backup smoke alarm. Fully glazed patio doors leading to patio and turfed garden.

Front aspect window. White sanitary ware.

Spacious landing leading to three good sized bedrooms and family bathroom. Carpet included throughout. Gas central heating via radiators.

Spacious master bedroom with rear aspect window. Fitted wardrobe and TV point.

Fully tiled modern shower room with rear aspect window, LED recessed downlights, wall mounted vanity unit, white sanitary ware and chrome heated towel rail.

Fully tiled modern bathroom, LED recessed downlights, wall mounted vanity unit, white sanitary ware and chrome heated towel rail.

Turfed rear garden with patio and outside tap. Rear garden has 1.8m high privacy fencing covering patio area and then 1.2m high split rail fence. Front and rear outside lighting. Parking for 2 cars.

Photography is of the show home.

We are sales and marketing agents for new homes. Whilst we endeavour to ensure our sales details/adverts/on-line representations etc. Are both accurate and a true reflection of the development or individual property being marketed, certain information is provided from the outset to us by our developer client and we are reliant upon the same. Therefore, we recommend that if any items/points are of particular importance please raise these with the sales team so that confirmation or verification can be sought from our developer client. Please also be aware that floor plans are a visual guide to show where rooms are situated within the property and all measurements given are approximate. Some floor plans indicate location of where wardrobes, beds, furniture etc. May be placed and unless separately stated do not form part of the specification. Our developer client may amend the specification or make changes to the layouts during the build up until the property is complete. Whilst we aim to keep our marketing material as up to date as possible, we may not always be immediately aware of these changes if we have not been updated by our developer client.


Sold

Plot 8

Plot 8, Dairy Mead Park, Newick Lane, Heathfield
  • 3
Plot 8 at Dairy Mead Park is a stunning 3 bedroom, 2 bathroom, home with stunning countryside views. AVAILABLE TO VIEW BY APPOINTMENT ...

Two Self Build Plots at Burwash Common

Swing Gate Hill, Burwash Common
  • 275,000
  • 0
*Each Plot £295,000* Two Excellent Self Build Opportunities available with Detailed Planning Consent, Adjoining Playing Fields and Situated in the High Weald Area ...

Sandbanks

Cacklebury Close, Hailsham
  • 500,000
  • 0
An Excellent Development Opportunity (Subject to All Necessary Consents) Extending to Approx. 0.488 Acres Situated on the Outskirts of Hailsham Town Centre and Set ...

Land West of Church Lane

Land West of Church Lane, Laughton
  • 775,000
  • 0
A Superb Residential Development Site for four Architecturally Designed Houses Providing A Pair of Semi Detached & Two Detached Dwellings Set in a Rural Position in ...